Beschrijving

LICHT EN RUIM 3-KAMERAPPARTEMENT MET BALKON EN WEIDS UITZICHT OVER DE LEK. 

Op zoek naar een instapklare woning op een centrale en toch rustige locatie? Westeinde 25 in Lekkerkerk biedt U een uitstekend verzorgd 3-kamerappartement met een woonoppervlakte van bijna 110 m², een zonnig balkon en een nette afwerking. Gelegen op de eerste verdieping van een kleinschalig complex uit 2000, met lift, eigen parkeerplaats, berging op de begane grond en alle voorzieningen binnen handbereik.

De ligging is ideaal: op loopafstand van winkels, openbaar vervoer en diverse voorzieningen zoals sportclubs en scholen. Ook natuurgebieden en de Lekdijk liggen in de directe omgeving voor wie graag wandelt of fietst.

INDELING:

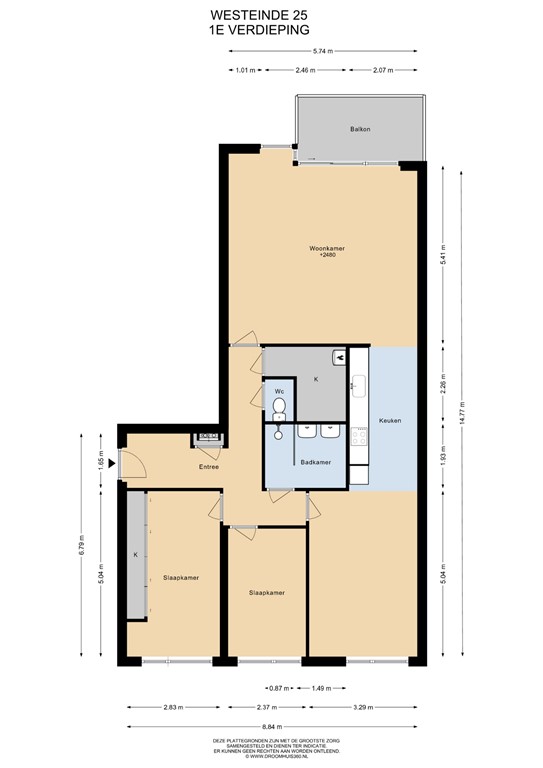
De afgesloten centrale entree met intercom en brievenbussen geeft toegang tot het trappenhuis en de lift. De woning bevindt zich op de eerste verdieping.

Bij binnenkomst in het appartement treft u een ruime hal met toegang tot vrijwel alle vertrekken. De woonkamer is zeer royaal (ca. 31 m²) en biedt een fijne lichtinval dankzij de grote raampartijen. Vanuit de woonkamer is het balkon bereikbaar, gelegen aan de voorzijde, waar U heerlijk in de zon kunt zitten.

De open keuken is praktisch ingericht en beschikt over diverse inbouwapparatuur. Verder zijn er momenteel twee ruime slaapkamers aanwezig, beide met voldoende ruimte voor kasten en een tweepersoonsbed. Een derde slaapkamer is eventueel nog te creëren aan de voorzijde van de woning.

De badkamer is voorzien van een dubbele wastafel en douche, en daarnaast is er een separaat toilet met fonteintje. Ook is er een inpandige berging met aansluiting voor wasmachine/droger.

BIJZONDERHEDEN:

•	Bouwjaar: 2000
•	Woonoppervlakte: ca. 108 m²
•	Inhoud: ca. 338 m³
•	Eigen parkeerplaats in de parkeerkelder
•	Balkon: ca. 7 m² (zuid gelegen)
•	Externe berging op begane grond: ca. 7 m²
•	Geheel voorzien van dubbele beglazing
•	Lift aanwezig
•	VvE actief
•	Verwarming en warm water via cv-combiketel

Deze woning is uitermate geschikt voor senioren of stellen die op zoek zijn naar een ruim en licht appartement op een centrale locatie.

Kenmerken