Beschrijving

Ruime en verzorgde gezinswoning met zonnige tuin en eigen oprit

In een rustige, kindvriendelijke woonwijk van Lisse ligt deze ruime en lichte twee-onder-een-kapwoning met eigen overkapte oprit, garage, zonnige tuin  op het Zuidwesten en een dakterras met veel privacy. Deze woning biedt alles wat je zoekt voor comfortabel gezinswonen: ruimte, licht, een fijne indeling en volop mogelijkheden qua kamers om er helemaal je eigen thuis van te maken.

Lichte en ruime leefruimte

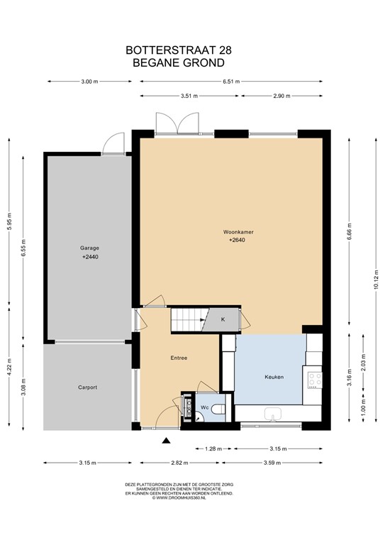
De sfeervolle woonkamer is royaal van opzet en geniet dankzij de grote ramen en dubbele tuindeuren veel daglicht. De lichte wanden, het klassieke visgraatparket en de prettige indeling zorgen voor een warme en uitnodigende sfeer. Er is meer dan voldoende ruimte voor een royale zithoek én een grote eettafel bij de keuken of aan de tuinzijde.
De tuin is via openslaande deuren bereikbaar en vormt een verlengstuk van de woonkamer – ideaal voor wie graag buiten leeft.

Praktische en complete keuken.

Aan de voorzijde van de woning bevindt zich de ruime, halfopen keuken in landelijke stijl. Deze is voorzien van veel kastruimte, een werkblad over de volledige breedte, inbouwapparatuur en een fijne lichtinval door het grote raam met uitzicht op de straat en de singel. De keuken leent zich uitstekend voor zowel dagelijks gebruik als uitgebreid koken.

Slaapverdieping en wellnessruimte

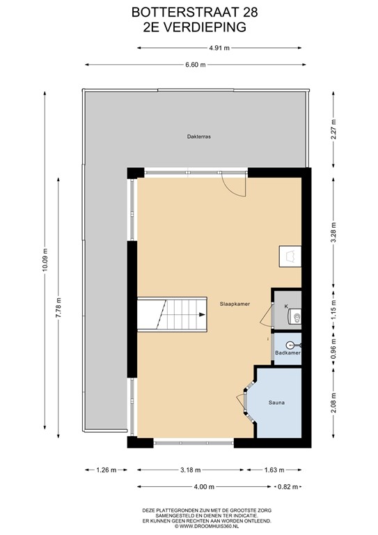
Op de verdieping bevinden zich meerdere ruime slaapkamers met grote raampartijen, waardoor elke kamer licht en comfortabel aanvoelt. De badkamer is voorzien van een ligbad, wandtoilet, een douchecabine en wastafel. 
De bovenste verdieping biedt nog een grote kamer met de mogelijkheid tot het eenvoudig creëren van meerdere slaapkamers met veel ramen, ideaal als atelier, kantoor aan huis of hobbyruimte. Dankzij de ruimte en lichtinval is dit een bijzonder veelzijdige verdieping. Hier is een tweede badkamer te vinden in de vorm van een douchecabine evenals extra comfort van een eigen sauna – de perfecte plek om na een lange dag heerlijk te ontspannen. Een bergkast met CV combiketel (eigendom) uit 2021, daarnaast meer bergruimte met opstelling wasmachine/drogerunit en het dakterras rondom met 14 zonnepanelen op het platte dak maken deze verdieping helemaal af.   

Zonnige en onderhoudsarme tuin

De achtertuin is verzorgd aangelegd met natuurstenen bestrating, beplanting en een houten berging. De ligging is zuidwest dus zeer zonnig en biedt veel privacy – een heerlijke plek om te relaxen of te genieten met familie en vrienden.
Aan de voorzijde is een eigen overdekte oprit met plaats voor de auto en toegang tot de ruim bemeten garage.

Locatie

De Botterstraat ligt in een rustige, groene en kindvriendelijke wijk, op korte afstand van winkels, scholen en sportvoorzieningen. Ook het gezellige centrum van Lisse en de Keukenhof zijn dichtbij, net als de uitvalswegen richting Leiden, Haarlem en Amsterdam.

Pluspunten op een rij:

-Ruime twee-onder-een-kapwoning met eigen oprit en riante garage
-De riante 6.55 x 3m diepe garage is v.v. een geïsoleerde sectionale deur en is elektrisch bedienbaar d.m.v. handzenders
-Royale, lichte woonkamer met dubbele tuindeuren en halfopen keuken met veel bergruimte 
-Meerdere ruime slaapkamers en extra kamer/atelier op de bovenste verdieping
-Zonnige, onderhoudsarme achtertuin met berging
-Gelegen in rustige en kindvriendelijke wijk, nabij winkels, scholen en openbaar vervoer
-De achtertuin is op het zuidwesten gelegen.
-Op zeer korte afstand (100 tot 150 mtr.) liggen drie speeltuintjes.

De vraagprijs voor dit unieke stukje Lisse is € 798.000 k.k. en de oplevering is in overleg.

Kenmerken