Beschrijving

‘Moderne uitgebouwde eengezinswoning met 4 slaapkamers in rustige, groene wijk’

Deze goed onderhouden eengezinswoning uit 1988 is gelegen in een rustige, groene en kindvriendelijke wijk in Lisse en beschikt over vier slaapkamers, twee dakkapellen, een lichte uitgebouwde woonkamer en een open keuken. De woning biedt veel leefruimte en comfort en is ideaal voor gezinnen of thuiswerkers. Winkels, scholen en sportvoorzieningen bevinden zich op korte afstand, net als het gezellige centrum van Lisse en de Keukenhof.

De indeling:

Begane grond

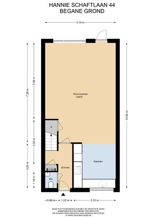
Via de entree kom je in de hal met meterkast en een modern toilet met hangcloset en fonteintje. Vanuit de hal is er toegang tot de lichte, ruime uitgebouwde woonkamer. De open keuken bevindt zich aan de voorzijde van de woning en beschikt over veel opbergruimte en diverse inbouwapparatuur, ideaal voor dagelijks gebruik en gezellig samenzijn. De gehele benedenverdieping is voorzien van vloerverwarming en afgewerkt met keramisch parket. Het dak van de uitbouw is in 2019 voorzien van nieuw bitumen, wat bijdraagt aan een duurzame en onderhoudsvriendelijke afwerking. Vanuit de woonkamer is er directe toegang tot de achtertuin.

Eerste verdieping

Op de overloop bevinden zich drie slaapkamers, waarvan één momenteel in gebruik is als werkplek/kantoor. De moderne badkamer is compleet uitgevoerd met een wandtoilet, inloopdouche met regendouche, wastafelmeubel, spiegelkast, designradiator en is voorzien van comfortabele vloerverwarming.

Tweede verdieping

De zolderverdieping bestaat uit een voorzolder met bergruimte, waar zich de opstelplaats bevindt voor de wasapparatuur, de CV-ketel (2023) en de mechanische ventilatie. Aangrenzend bevindt zich een zeer ruime vierde slaapkamer. Deze zolderkamer is bijzonder licht dankzij dakkapellen aan beide zijden en beschikt over een wastafel, waardoor de ruimte multifunctioneel te gebruiken is.

Buitenruimte

De achtertuin is zonnig gelegen op het noordwesten en is praktisch en onderhoudsvriendelijk ingericht, waardoor het een fijne plek is om te ontspannen. Achterin de tuin bevindt zich een stenen berging voorzien van elektriciteit, met aangrenzend een overkapping. De tuin is tevens bereikbaar via een achterom.

Ligging

De woning ligt in een rustige, groene en kindvriendelijke wijk, op korte afstand van winkels, scholen en sportvoorzieningen. Ook het gezellige centrum van Lisse en de Keukenhof zijn dichtbij. Lisse is zeer gunstig gelegen ten opzichte van Amsterdam, Den Haag, Haarlem en Schiphol, met goede openbaarvervoersverbindingen en snelle uitvalswegen richting Leiden, Haarlem en Amsterdam.


Pluspunten op een rij

•	Ruime uitgebouwde woonkamer v.v. vloerverwarming en open keuken
•	4 slaapkamers en moderne badkamer en toilet
•	Ruime zolder met dakkapellen aan beide zijden en wastafel
•	Zonnige achtertuin met achterom, stenen berging en overkapping
•	Energielabel A en HR CV-ketel uit 2023
•	Gelegen in een rustige, groene en kindvriendelijke wijk nabij steden en Schiphol

Opleverdatum in overleg en de vraagprijs voor dit uniek stukje Lisse is € 519.000,- k.k.

Kenmerken