Beschrijving

‘Met veel liefde bewoonde hoekwoning met karakter uit 1935 met een zonnige tuin, grote schuur en een nieuwe badkamer vlakbij het strand’

In het charmante Noordwijk Binnen, in de gewilde Egmonderstraat, staat deze met liefde bewoonde hoekwoning die uitnodigt om fijn te wonen. Dit huis combineert licht, ruimte en sfeer op een aangename manier die ruimte overlaat om zelf in te richten. De zonnige achtertuin met grote schuur biedt volop plek voor het buitenleven. En de ligging? Rustig, met een grote diversiteit aan bewoners en tegelijkertijd heel centraal met diverse scholen, winkels en andere voorzieningen op loop- of fietsafstand. Net als het strand! Egmonderstraat 29 is dan ook de ideale match voor jonge gezinnen of stellen die houden van een huis met karakter én een centrale ligging dicht bij zee en duinen. Hier wonen is je oprecht thuis voelen.

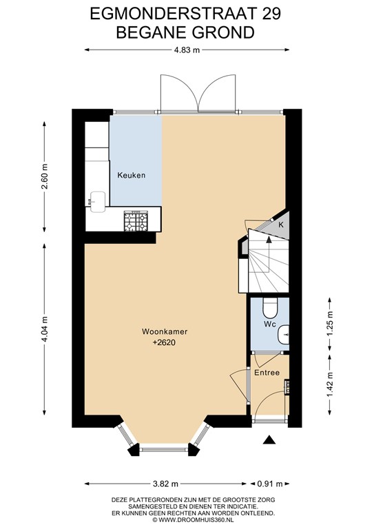
Na de charmante voortuin en de voordeur stap je binnen in de hal, waar alles handig samenkomt. Naast een keurig toilet met fonteintje is er plek voor een garderobe. Vanuit hier is de ruime, lichte woonkamer toegankelijk met een open verbinding met de achtergelegen keuken. Deze leefruimte biedt volop mogelijkheden. Aan de voorzijde is ruimte voor een royale zithoek bij de televisie, terwijl aan de tuinzijde een grote eettafel staat met zicht op de achtertuin met veel privacy. Aan de tuinzijde is ook de keuken gerealiseerd, voorzien van een gaskookplaat, een oven, vaatwasser, een koelkast, een vriezer en een ruime bergkast onder de trap. Via de keuken loop je zo de achtertuin op het Zuidwesten in. De tuin is sfeervol aangelegd met een buitenhaard, een bamboe overkapping en plantenbakken op verschillende niveaus, waardoor er in elk seizoen een levendige sfeer is. De grote berging biedt ruimte voor fietsen, gereedschap of tuinspullen en heeft bovendien de aansluiting voor de wasmachine en droger. Ook is er een achterom. De trap naar de eerste verdieping ligt centraal op de begane grond.

Op de eerste verdieping zijn een badkamer, praktische werkplek en twee slaapkamers die beide een prettige lichtinval en een praktische indeling hebben. De grootste kamer ligt aan de achterzijde en vormt nu de ouderslaapkamer met een mooie en efficiënte inbouwkast, zicht op de achtertuin en toegang tot de nieuwe badkamer. Deze is strak en tijdloos afgewerkt met een neutrale kleurencombinatie. Hier vind je een ruime douche en brede wastafel met sfeervol meubel, een toilet en inbouwverlichting. Een groot raam geeft veel daglicht. Aan de voorzijde ligt de tweede slaapkamer met zicht op de straat. Deze kamer is door de huidige bewoners in gebruik als kinderkamer. Op de overloop is bovendien een maatwerk bureau gerealiseerd die een extra werkplek vormt.

De tweede etage is bereikbaar door middel van een vaste trap en beschikt over veel bergruimte. Het dakvenster zorgt voor daglicht en er is op de zolder veel opbergruimte gecreëerd door middel van kasten onder de schuine delen van het dak. Bovendien hebben de huidige bewoners hier een slaapplek ingericht. Ondanks dat deze ruimte niet meegerekend mag worden tot woon-vierkante meters, is dit een zeer toegankelijke en bruikbare ruimte 

Noordwijk is een van de meest gewilde dorpen van de Nederlandse kuststreek en staat bekend om het strand en de duinen, de rust en de zeer charmante woonomgeving. Hier in Noordwijk Binnen woon je op een plek met veel historie: mooie straatjes, sfeervolle pleintjes en monumentale panden geven het dorp veel karakter. Alle dagelijkse voorzieningen liggen op korte afstand: zowel basisscholen als voortgezet onderwijs, supermarkten, sportclubs en gezellige horeca zijn eenvoudig te bereiken. Voor een frisse neus of ontspanning hoef je nooit ver: de duinen en het strand liggen op slechts enkele minuten fietsen en ook bos en diverse wandel- en fietsroutes zijn dichtbij. Dankzij de centrale ligging ben je bovendien snel op de uitvalswegen richting Leiden, Haarlem of Den Haag. Noordwijk biedt de perfecte balans tussen rust, comfort en de levendigheid van het kustleven.

Bijzonderheden:

- Woonoppervlakte 64m2
- Perceeloppervlakte 134m2
- Energielabel D
- Goed onderhouden en met liefde bewoonde eindwoning
- Spouwmuurisolatie, schilderwerk achterzijde en schuur gedaan in 2025
- Nieuwe vloer, schilderwerk binnenzijde, schakelmateriaal gedaan in 2024
- Gelegen in een zeer kindvriendelijke en populaire woonwijk
- Zeer sfeervol en efficiënte indeling
- Op loopafstand van (basis)scholen en winkels
- Fijne, zeer zonnige tuin met achterom en grote schuur
- “Wij hadden hier eigenlijk voor eeuwig willen blijven” aldus de huidige bewoners

Oplevering in overleg, maar bij voorkeur nog in 2025

Kenmerken