Beschrijving

‘Goed onderhouden, modern familiehuis met veel ruimte en een centrale ligging aan de statige Parklaan’

De Parklaan heeft haar naam te danken aan het prachtige park Rusthoff dat gelegen is in dezelfde straat. Het is een opvallend groene plek middenin Bollenstreekdorp Sassenheim en beschikt niet alleen over fraaie wandelpaden en genoeg bankjes om te genieten van de natuur, ook is er een kinderboerderij, een horecagelegenheid en een grote speelweide die wordt ingezet voor diverse activiteiten.

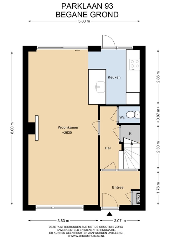
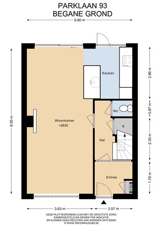
Nummer 93 is onderdeel van een huizenrij met frisse witte gevels en Franse balkons. De groene voortuinen vormen een mooie, natuurlijke scheiding tussen het trottoir en de aangename rust in de woonkamer. Want dit lichte huis voelt absoluut fijn en behaaglijk. Het start al in het voorportaal met ruimte voor een garderobe en de meterkast, waarna de centrale hal, met originele marmeren plavuizen, volgt met een toilet, de trapopgang naar boven en een praktische trapkast. Hier is ook de toegang tot de gezellige woonkamer met grote ramen en de moderne, open keuken met diverse inbouwapparatuur waaronder een vaatwasser, inductiekookplaat, koelvriescombinatie en een bakoven. Bij de schuifpui naar de zonnige achtertuin is ruimte voor een grote eettafel, terwijl de zithoek ingericht kan worden aan de voorzijde met zicht op de voortuin.

De achtertuin is prachtig aangelegd met een mooie combinatie van sierbestrating, moderne grote tegels van 1 bij 1 meter, grind en groene accenten in de vorm van klimplanten en bloempotten. De stenen berging heeft voldoende ruimte voor fietsen, gereedschap, speelgoed en bijvoorbeeld tuinkussens. In de zomer is vanaf halverwege de ochtend de zon in de tuin tot zonsondergang. Ook zijn er meerdere zitplekken zodat er altijd een plekje in de zon óf schaduw te vinden is.

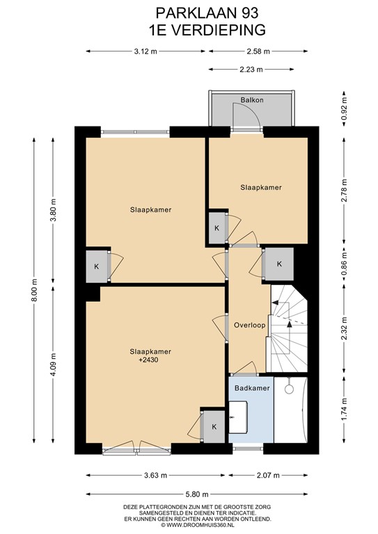
Op de eerste etage zijn drie slaapkamers en een badkamer. Twee slaapkamers zijn vergelijkbaar qua grootte waarvan de slaapkamer aan de voorzijde de beschikking heeft over een frans balkon. De kleinste slaapkamer aan de achterzijde heeft toegang tot een balkon met uitzicht op de achtertuin met stenen berging en een achterom. De badkamer is opvallend slim ingedeeld en ligt aan de voorzijde van het huis. Alle kamers én de overloop beschikken over een vaste kast.

De bovengelegen zolder is een fantastische ruimte met een kleine dakkapel en een voorzolder waar ruimte is voor de wasmachine en droger. Hier is tevens de recente HR CV ketel te vinden. Dit huis is klaar voor een nieuw hoofdstuk, voor nieuwe bewoners en nieuwe ervaringen.

De Parklaan is bijzonder centraal gelegen in Sassenheim in de gemeente Teylingen. Zo liggen er meerdere basisscholen op loopafstand, is het centrum binnen enkele minuten wandelen bereikbaar en liggen meerdere sport- en recreatiefaciliteiten in de omgeving. Het gezellige centrum van Sassenheim heeft naast meerdere supermarkten, verswinkels, speciaalzaken, ook een Hema, Xenos en een Action. Het horecaplein biedt een mooi divers aanbod en leuke terrassen. Uitvalsweg A44 is snel bereikbaar, bovendien beschikt Sassenheim over een treinstation.

Bijzonderheden:

-	Oppervlakte van de woning is 115m2
-	Goed onderhouden familiehuis uit 1956
-	Houten visgraat vloer op de begane grond
-	4 goed formaat slaapkamers
-	8 zonnepanelen (2023)
-	Meterkast en keuken vervangen in 2019, vaatwasser in 2025
-	Tuin vernieuwd in 2020, schutting in 2025
-	Zeer gunstig gelegen ten opzichte van scholen en het centrum

De vraagprijs voor dit fijne familiehuis bedraagt € 500.000,- en de oplevering is in overleg.

Kenmerken