Beschrijving
Sfeervolle jaren ’30 Tweekapper met diepe zonnige tuin, aan doorgaand vaarwater.
Aan de geliefde Postwijkkade, op loopafstand van het dorpscentrum, staat deze karakteristieke jaren ’30 woning. Met ca. 121 m² aan woonoppervlakte, een diepe achtertuin, een riante woonkamer, drie riante slaapkamers, twee balkons en een vaste trap naar de tweede verdieping met vierde slaapkamer biedt deze woning verrassend veel ruimte en potentie. De rustige ligging, het charmante karakter en de goede basis maken dit een ideale woning voor wie een fijn thuis zoekt dat nog geheel naar eigen smaak te moderniseren is.
Indeling
Begane grond
Entree met vestibule, hal, trapopgang, meterkast en toegang tot de woonkamer (voormalig en-suite). De woonkamer heeft grote ramen aan beide zijden, wat zorgt voor een prettige lichtinval en een ruimtelijk gevoel. Aan de achterzijde is er via openslaande deuren toegang tot de diepe tuin op het zuidwesten.
Keuken
De dichte keuken ligt aan de achterzijde en biedt toegang tot de tuin. De ruimte vormt een prima basis om naar eigen smaak te vernieuwen.
Eerste verdieping
Op de eerste verdieping bevinden zich twee ruime slaapkamers met beide vaste kastruimte en een eigen balkon, een kleinere derde slaapkamer en de badkamer. De badkamer is eenvoudig uitgevoerd met een douche en wastafel. Dankzij de rechte gevels is er veel praktische ruimte en zijn er mogelijkheden om te moderniseren of de gehele indeling aan te passen.
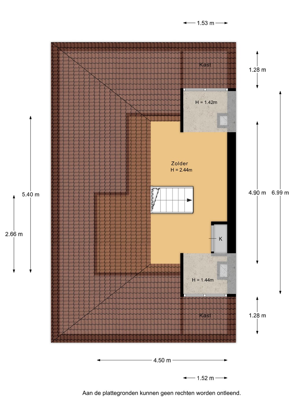
Tweede verdieping
De tweede verdieping is bereikbaar via een vaste trap en biedt volop mogelijkheden. De verdieping bestaat nu uit een grote open zolderruimte met de cv ketelruimte, voor en achter een dakkapel en volop bergruimte. Dit kan uitstekend worden omgevormd tot een extra slaapkamer, een werkkamer of hobbyruimte.
Buitenruimte
De diepe achtertuin op het zuidwesten is een van de sterke punten van deze woning. De tuin ligt heerlijk vrij, grenst aan een groene haag aan de achterzijde en biedt volop privacy. Dankzij de lengte is er ruimte voor meerdere terrassen, speelruimte, beplanting of bijvoorbeeld een grote zithoek. Achterin de tuin staat een eenvoudige houten berging. Ook zijn er direct aan de keuken twee lichte bouwwerken geplaatst welke beide als bergruimte kunnen worden gebruikt.
Locatie
De Postwijkkade is een rustige straat aan doorgaand vaarwater op enkele minuten wandelen van winkels, horeca, scholen en sportvoorzieningen. Station Sassenheim en uitvalswegen richting Leiden, Den Haag en Amsterdam zijn snel te bereiken, wat deze locatie ideaal maakt voor forenzen.
Pluspunten van deze woning
• Charmante jaren ’30
• Diepe achtertuin met veel privacy en groen
• Vier slaapkamers
• C.V.-ketel en twee haarden
• Centrale ligging nabij centrum, station en voorzieningen
• Veel potentie om naar eigen smaak te moderniseren
Belangrijke punten om rekening mee te houden
Aangezien de woning dient te worden gemoderniseerd en de verkoop onder bewindvoering geschiedt, zullen de volgende clausules in de koopakte worden opgenomen:
- een "as is where is" clausule waarbij de verkoper/bewindvoerder na levering geen enkele aansprakelijkheid ten aanzien van eventuele zichtbare en niet zichtbare gebreken accepteert;
- een “ouderdomsclausule”, een “voorbehoud toestemming kantonrechter-clausule” en een “geen eigen bewoning door verkoper-clausule” worden.
-De riolering loopt deels door schuur van de buren waar bij de overdracht bij de notaris een erfdienstbaarheid voor partijen gevestigd zal worden.
Ook zal Notariskantoor Voorhout als “project notaris” voor de afhandeling van de verkoop worden aangewezen door de bewindvoerder.
De vraagprijs voor dit historisch stukje Sassenheim is € 560.000,- k.k. en de oplevering kan direct na akkoord kantonrechter.