Beschrijving
‘Licht 4-kamerappartement met moderne keuken en vernieuwde badkamer op de eerste etage van een kleinschalig complex op loopafstand van het centrum’
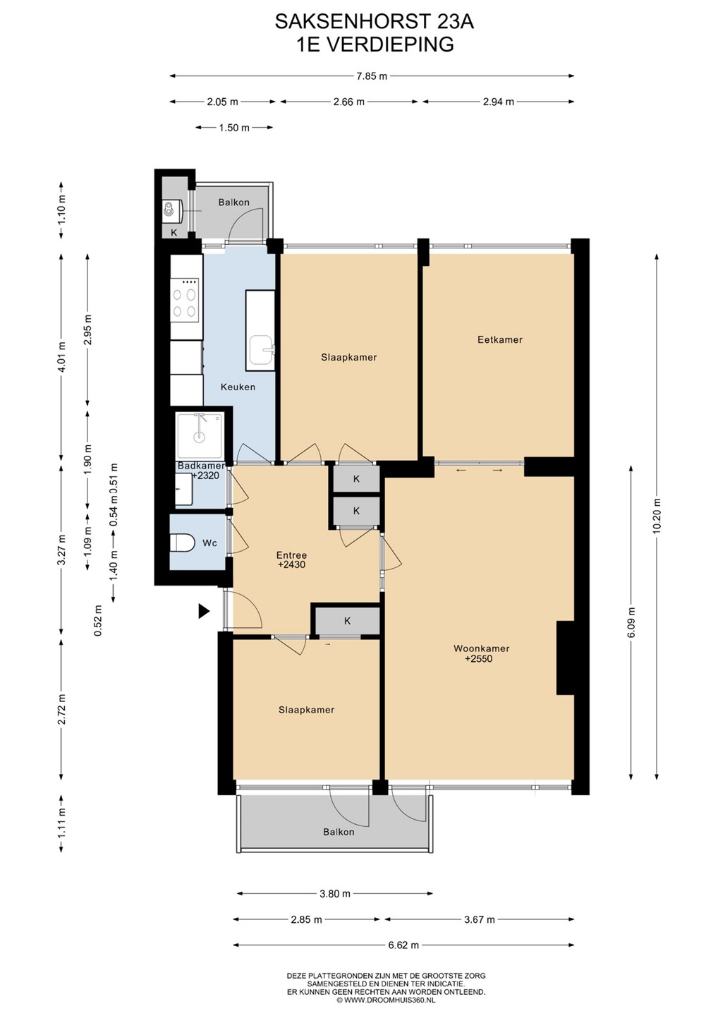
In een rustige en groene woonomgeving in Sassenheim ligt dit 4-kamerappartement aan de Saksenhorst 23 A. Het appartement bevindt zich op de eerste verdieping heeft een woonoppervlakte van 75 m² en beschikt over een lichte woonkamer en suite met grote ramen, een af te sluiten eetkamer, een moderne keuken, twee/drie slaapkamers, een vernieuwde badkamer en een fijn balkon.
Via de centrale entree met brievenbussen en slechts een paar trappen bereik je het appartement op de eerste verdieping. Op de begane grond van het complex bevindt zich een ruime privéberging van ca. 6 m². De hal van het appartement is ruim opgezet en geeft toegang tot alle vertrekken. De woonkamer is opvallend licht dankzij de grote raampartijen en biedt een fraai uitzicht op het omliggende groen. Via schuifdeuren staat de eetkamer in open verbinding met de woonkamer, waardoor deze ruimte multifunctioneel te gebruiken is, bijvoorbeeld als werkkamer, hobbyruimte, slaapkamer of extra zitkamer.
De moderne recente keuken is uitgevoerd in een neutrale kleurstelling en voorzien van diverse AEG inbouwapparatuur zoals een inductiekookplaat, afzuigkap, combi-oven, was-/droogcombinatie en koel-/vriescombinatie. Er is veel opbergruimte, aansluiting wasmachine en vanuit de keuken is er directe toegang tot het balkon en de CV-ruimte. De badkamer is volledig vernieuwd en stijlvol afgewerkt met moderne tegels, een ruime inloopdouche met regendouche, een strak wastafelmeubel en een designradiator. Het separate toilet is in dezelfde luxe stijl uitgevoerd.
Het appartement beschikt momenteel over twee ruime slaapkamers. De hoofdslaapkamer is royaal van formaat en heeft een rustige ligging met uitzicht op de bomen en de bollenvelden achter het complex. De tweede slaapkamer is uitermate geschikt als logeerkamer, kastenkamer of kantoorruimte. Het zuidoostelijk georiënteerde balkon aan de voorzijde vormt een heerlijke plek om ’s ochtends te genieten van de eerste zonnestralen in alle rust en comfort van je eigen huis. Een derde slaapkamer is dus ook nog aan de achterzijde te creëren.
Gelegen in een gewilde wijk van Sassenheim omringd door groene parken, bollenvelden, speeltuintjes, basisscholen, het fijne centrum en diverse sport- en recreatiemogelijkheden. Op loopafstand liggen diverse bushaltes en in minder dan 10 fietsminuten is het treinstation van Sassenheim bereikbaar wat zorgt voor een snelle bereikbaarheid van bijvoorbeeld Leiden, Amsterdam en Schiphol.
Bijzonderheden:
• 3/4-kamerappartement in de gewilde wijk ‘De Horsten’ in Sassenheim
• Moderne keuken, vernieuwde badkamer en separaat toilet
• Twee slaapkamers met mogelijkheid tot het maken van een 3e slaapkamer
• Rustige groene ligging nabij centrum en voorzieningen
• Voldoende parkeergelegenheid in de omgeving
De vraagprijs van dit unieke stukje Sassenheim is € 369.000,- k.k. en de oplevering in overleg