Beschrijving
        
            ‘Fijne eengezinswoning met een zonnige, vrijgelegen tuin, serre en vier ruime slaapkamers in de geliefde wijk de Rodes in het centrum van Voorhout’
Op een aangename, rustige en kindvriendelijke plek in de populaire woonwijk De Rodes staat deze verzorgde eengezinswoning. Een fijne plek waar kinderen veilig kunnen buitenspelen in de vele speeltuintjes en waar de gezellige Herenstraat letterlijk om de hoek ligt. De Beukenrode is een straat waar de sfeer goed voelt, al zodra je aan komt rijden. Verzorgd, groen en met brede trottoirs. Een ideale woonomgeving voor (jonge) gezinnen die graag in een prettige en gemoedelijke buurt willen wonen dichtbij het station. Binnen is de woning verrassend licht en praktisch ingedeeld, met voldoende leefruimte voor het hele gezin.
Zodra je de woonkamer binnenstapt, valt het licht direct op. De brede raampartij en de aangrenzende serre zorgen niet alleen voor een fijne verbinding met de tuin, maar geven ook een prachtige doorkijk. De woonkamer voelt ruim en prettig aan dankzij de goede indeling, de houten vloer én het extra glas van de serre geeft nog meer lichtinval. Mede daardoor ook energiezuinig.  De keuken ligt aan de voorzijde en kijkt uit over de voortuin met de fietsenberging en de straat. De keuken is neutraal van kleur en voorzien van diverse inbouwapparatuur, waaronder een gaskookplaat, een combimagnetron, een koelkast en de aansluitingen voor de (af)wasmachine en droger. Door de riante afmeting van de ruimte is er ook plek voor een knusse ontbijthoek, is er toegang tot het toilet én zijn er bovendien  twee praktische bergkasten. In de centrale hal is  zowel een toegangsdeur naar de woonkamer als naar de keuken en de trapopgang naar boven. De achtertuin ligt gunstig op de zon en heeft achterin een sfeervolle atelierruimte met een berging en een achterom.
Op de eerste verdieping liggen drie, goed formaat, slaapkamers. De kamer aan de voorzijde ligt over de gehele breedte en is in gebruik als ouderslaapkamer met een grote garderobekast en een tweepersoonsbed. De twee, vergelijkbare, kamers aan de achterzijde kijken uit over de tuin. De volledig betegelde badkamer ligt centraal op de overloop en is ingericht met een douche, handdoekradiator, een vrijhangend toilet en een wastafel. De afwerking is neutraal en keurig.
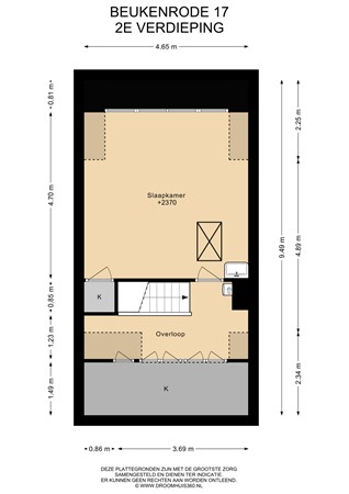
Op de tweede verdieping word je aangenaam verrast door de ruimte. Hier is een grote slaapkamer met een brede dakkapel die niet alleen zorgt voor extra licht, maar ook voor nog meer ruimte. Er is een wastafel, een bergkast en toegang tot de bovengelegen bergvliering. Op de voorzolder is onder de schuine dakvlakken bovendien slim gebruikgemaakt van de ruimte, want achter de op maat gemaakte kasten kun je moeiteloos al je spullen kwijt. Dankzij de dakkapel en de keurige afwerking is ook deze verdieping een volwaardige etage, ideaal als ouderslaapkamer, speel/tienerkamer of een riante werkplek thuis.
Met scholen, sportclubs, winkels en het station van Voorhout allemaal op korte afstand, woon je hier op een plek waar alles binnen handbereik is. De wijk De Rodes staat bekend om het rustige, veilige karakter en het vele groen. Precies wat je zoekt als je een volgende stap wilt zetten met je gezin. Voor de woning is er volop parkeergelegenheid en in de directe omgeving vind je diverse speeltuintjes, kinderopvang, basisscholen en sportverenigingen. Ook de natuur ligt om de hoek: binnen een kwartier sta je op het strand van Noordwijk of vaar je op de Kagerplassen. En met de goede verbindingen richting Leiden, Haarlem en Amsterdam is dit een bijzonder centrale woonplek in de Bollenstreek. Kortom: een lichte, goed onderhouden gezinswoning op een fijne locatie.
Pluspunten
-	Gelegen in een zeer kindvriendelijke en gewilde wijk
-	Schilderwerk buitenzijde gedaan in zomer 2025
-	Grote zolder met dakkapellen
-	4 slaapkamers
-	Zeer dichtbij scholen, winkels en het station van Voorhout
-	Praktische indeling met veel bergruimte
-	Ruime berging aan de voorzijde
-	Zonnige achtertuin op het Zuidwesten met atelier, berging en achterom, bijzonder vrij gelegen.
De vraagprijs is € 525.000 k.k. en de oplevering is in overleg.