Beschrijving
Sfeervolle A++ hoekwoning met moderne keuken, 4 slaapkamers en zonnige tuin op het zuidwesten
In een rustige en groene woonwijk in Voorhout ligt deze verrassend ruime hoekwoning aan de Foeliehof 24. Deze woning uit 1987 is met zorg onderhouden, beschikt over een woonoppervlakte van circa 142 m² en biedt volop leefruimte voor een gezin. Dankzij de goede staat van onderhoud, moderne keuken, stijlvolle badkamer en zonnige tuin is dit een plek waar je direct kunt intrekken en genieten.
De woning heeft daarnaast een energielabel A++, is voorzien van dak-, muur- en vloerisolatie, en vloerverwarming op de begane grond en grotendeels voorzien van HR++-glas, wat zorgt voor een comfortabel en energiezuinig woonklimaat.
Indeling
Begane grond
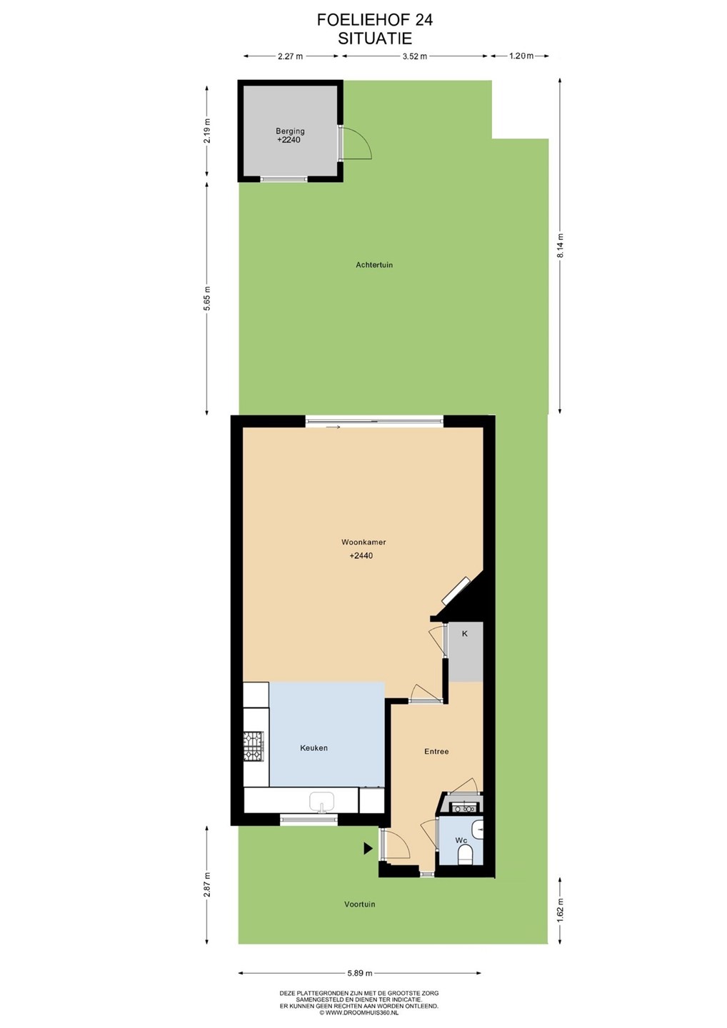
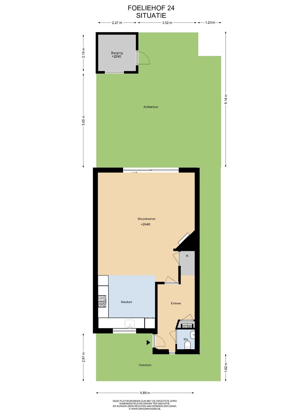
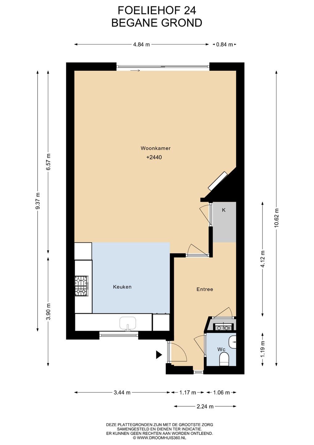
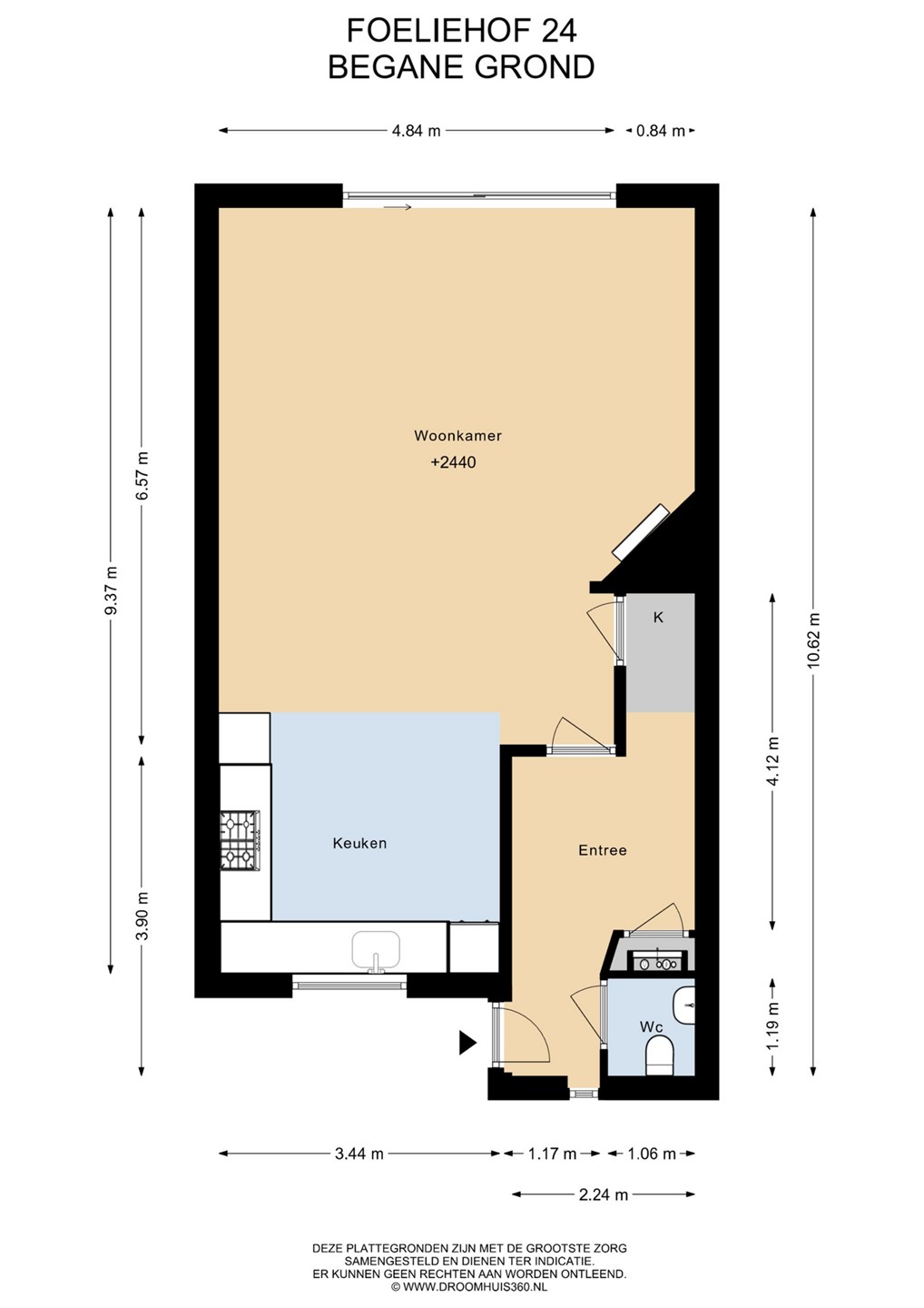
Via de nette voortuin bereik je de entree met hal, garderobe, modern toilet en trapopgang. De ruime lichte woonkamer heeft een warme en uitnodigende sfeer met grote raampartijen, een mooie vloer en een gashaard die het geheel extra gezellig maakt. Er is voldoende plek voor een royale zithoek en een grote eettafel. De gehele begane grondvloer is voorzien van vloerverwarming.
Aan de voorzijde bevindt zich de moderne open keuken in hoekopstelling, uitgevoerd in lichte tinten met donkere accenten. De keuken is uitgerust met diverse inbouwapparatuur, waaronder een 5-pits gaskookplaat, afzuigkap, combi-oven, vaatwasser, Quooker en koel-/vriescombinatie. Dankzij het ruime en extra diepe werkblad is dit een heerlijke plek voor kookliefhebbers.
Eerste verdieping
De overloop biedt toegang tot drie ruime slaapkamers, stuk voor stuk keurig afgewerkt en voorzien van grote ramen die voor veel licht zorgen. De badkamer is modern en volledig betegeld in neutrale tinten. Deze is voorzien van een douchecabine, dubbele wastafel met meubel, tweede toilet, elektrische vloerverwarming en een raam voor natuurlijke ventilatie.
Tweede verdieping
De tweede verdieping biedt een ruime vierde slaapkamer met groot dakraam en extra opbergruimte achter de knieschotten en op de vliering boven de voorzolder. Deze kamer kan wellicht perfect dienen als master bedroom, werkkamer of hobbyruimte.
Buitenruimte
De zonnige achtertuin is een waar pluspunt: gelegen op het zuidwesten en fraai aangelegd met groen, een terras en voldoende privacy. Hier geniet je van de middag- en avondzon. Achterin de tuin staat een stenen berging met elektriciteit, ideaal voor fietsen en tuingereedschap. Via de achterom is de tuin goed bereikbaar.
Pluspunten van deze woning
• Sfeervolle hoekwoning in gewilde woonwijk op een royaal perceel van 165 m2
• Woonoppervlakte ca. 142 m2 | Inhoud ca. 499 m3
• Moderne keuken met inbouwapparatuur
• Luxe badkamer met dubbele wastafel en tweede toilet
• Volledige begane grond verdieping voorzien van vloerverwarming als hoofdverwarming
• Alle dakramen voorzien van buitenzonwering
• Energielabel A++, uitstekend geïsoleerd en voorzien van zonnepanelen en hybride warmtepomp
• Zonnige tuin op het zuidwesten met achterom
• Ligging nabij scholen, winkels, speeltuinen en station Voorhout
De vraagprijs voor dit mooie stukje Voorhout is € 598.000,- k.k. en de oplevering is in overleg, bij voorkeur Q1 2026