Beschrijving

‘Ruim, licht en fantastisch onderhouden uitgebouwd familiehoekhuis met zonnige tuin, een veranda en zonnepanelen aan een autovrij hofje’

Aan de rustige, autovrije Laurierhof in Voorhout staat deze verzorgd afgewerkte hoekwoning uit 1987. Een huis dat prettig aanvoelt, licht en praktisch ingedeeld is en met een afwerkingsniveau dat ver boven het gemiddelde ligt. Met 115 m² woonoppervlakte biedt dit familiehuis precies wat veel jonge gezinnen willen: wooncomfort, rust en een fijne, kindvriendelijke omgeving op korte afstand van alle benodigde voorzieningen. Dit is dan ook een huis waar je binnenkomt en weet dat er met veel liefde is gewoond. De basis klopt. De ruimtes zijn logisch ingedeeld. En doordat het een hoekwoning betreft, profiteer je van extra lichtinval en een aangename mate van privacy.

INDELING

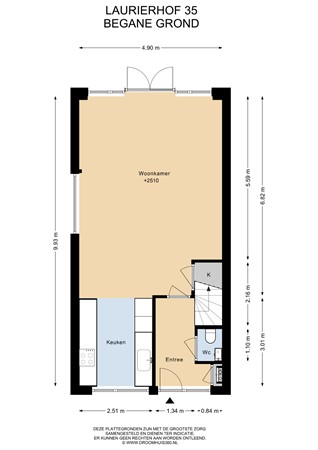
De entree bevindt zich aan de voorzijde van de woning waar vanuit de hal een modern wandtoilet met fonteintje, de meterkast en de trapopgang naar de eerste verdieping te vinden is. Vanuit hier stap je ook de uitgebouwde woonkamer binnen. De prettige lichtinval, dankzij de hoekligging, komt doordat aan meerdere zijden ramen zijn. Het geeft de begane grond een open en ruimtelijk karakter. De woonkamer biedt voldoende plaats voor een comfortabele zithoek én een royale eettafel. De zichtlijnen richting de tuin versterken het gevoel van ruimte. Aan de voorzijde bevindt zich de keuken, praktisch opgesteld en luxe uitgevoerd. Hier kijk je uit op de voortuin en het groen aan de andere zijde van het voetpad wat zorgt voor een aangenaam contact met buiten. De indeling is functioneel en biedt voldoende werk- en bergruimte. Er is een inductiekookplaat, afzuigkap, vaatwasser, combioven en een koelvries-combinatie. Onder de trap is een ruime bergkast gerealiseerd. De openslaande deuren aan de achterzijde verbinden de woonruimte met de zonnige, vrij gelegen achtertuin, die onderhoudsvriendelijk is ingericht en voorzien van een fraai aangelegd, betegeld terras. Ook is er een overkapping, een achterom en een praktische berging.

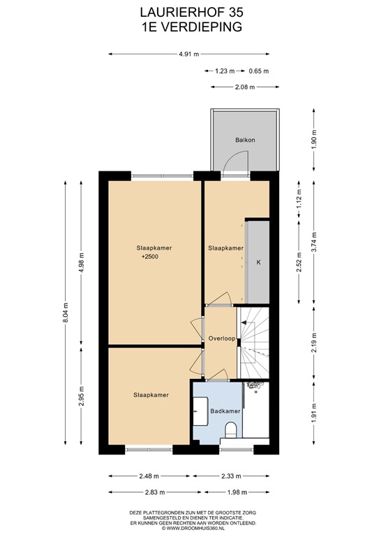
Op de eerste verdieping bevinden zich drie slaapkamers en de badkamer. De kamers zijn stuk voor stuk goed van formaat en praktisch in te delen als slaap-, werk- of kinderkamer. De kleinste kamer van de drie is in gebruik als multifunctionele ruimte met een bureau en een vaste garderobekast. Vanuit hier is toegang tot het balkon aan de achterzijde met uitzicht op de tuin. De moderne badkamer is gesitueerd aan de voorzijde en voorzien van de gebruikelijke sanitaire voorzieningen zoals een ligbad met douchegelegenheid, een toilet, handdoekradiator en een wastafel met sfeervol opbergmeubel. Alles is functioneel ingedeeld en bijzonder netjes afgewerkt.

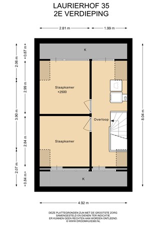
Via de vaste trap is de tweede verdieping te bereiken. Deze zolderverdieping biedt extra mogelijkheden voor gezinnen, want afhankelijk van de wensen kan deze etage met twee slaapkamers gebruikt worden als werkruimte, hobbyruimte of extra slaapkamers. Beide kamers zijn licht en ruim door de brede dakkapellen. Ook is er veel opbergruimte onder de schuine delen van het dak. Bovendien is er op de voorzolder meer dan voldoende ruimte voor de wasmachine en droger. De aanwezigheid van deze volwaardige verdieping vergroot de gebruiksmogelijkheden van deze woning aanzienlijk.

OMGEVING

De Laurierhof is gelegen in een rustige, kindvriendelijke woonwijk in Voorhout. Hier woon je in een beschutte omgeving zonder direct autoverkeer. Speelgelegenheid voor kinderen ligt tegenover het huis en ook basisscholen, sportverenigingen en supermarkten zijn dichtbij. Het NS-station Voorhout bevindt zich op korte fietsafstand met directe verbindingen richting Leiden, Haarlem en Amsterdam. Ook de uitvalswegen richting de A44 en N206 zijn snel bereikbaar. Wie werkt in de regio woont hier verrassend centraal. Voor ontspanning liggen het strand van Noordwijk, de duinen en het uitgestrekte bollenlandschap op korte afstand. Dat maakt Voorhout geliefd bij gezinnen en mensen die rustig willen wonen met de stad binnen handbereik.

BIJZONDERHEDEN

-	Ruim en licht uitgebouwd hoekhuis verdeeld over 3 verdiepingen
-	Zeer goed onderhouden en luxe afgewerkt
-	Opvallend kindvriendelijke en veilige omgeving
-	5 slaapkamers
-	Heerlijke voor- en achtertuin met veel privacy
-	Beschikt over zonnepanelen
-	Alle gemakken van Voorhout en omgeving zijn binnen handbereik

De vraagprijs voor dit mooie stukje Voorhout is € 598.000,- k.k. en de oplevering is in overleg.

Kenmerken