Beschrijving
Behoorlijk riante en moderne A label gezinswoning in een rustige woonwijk
In een rustige, kindvriendelijke woonwijk van Voorhout staat deze goed onderhouden tussenwoning aan de Taxushaag 18. De woning is gebouwd in 2016, beschikt over een woonoppervlakte van circa 135 m² en is volledig geïsoleerd. Dankzij de prettige indeling, moderne afwerking en zonnige tuin is dit een comfortabele woning waar je zo in kunt. De ligging is gunstig en overzichtelijk, met weinig verkeer, waterpartij en alle dagelijkse voorzieningen in de directe omgeving.
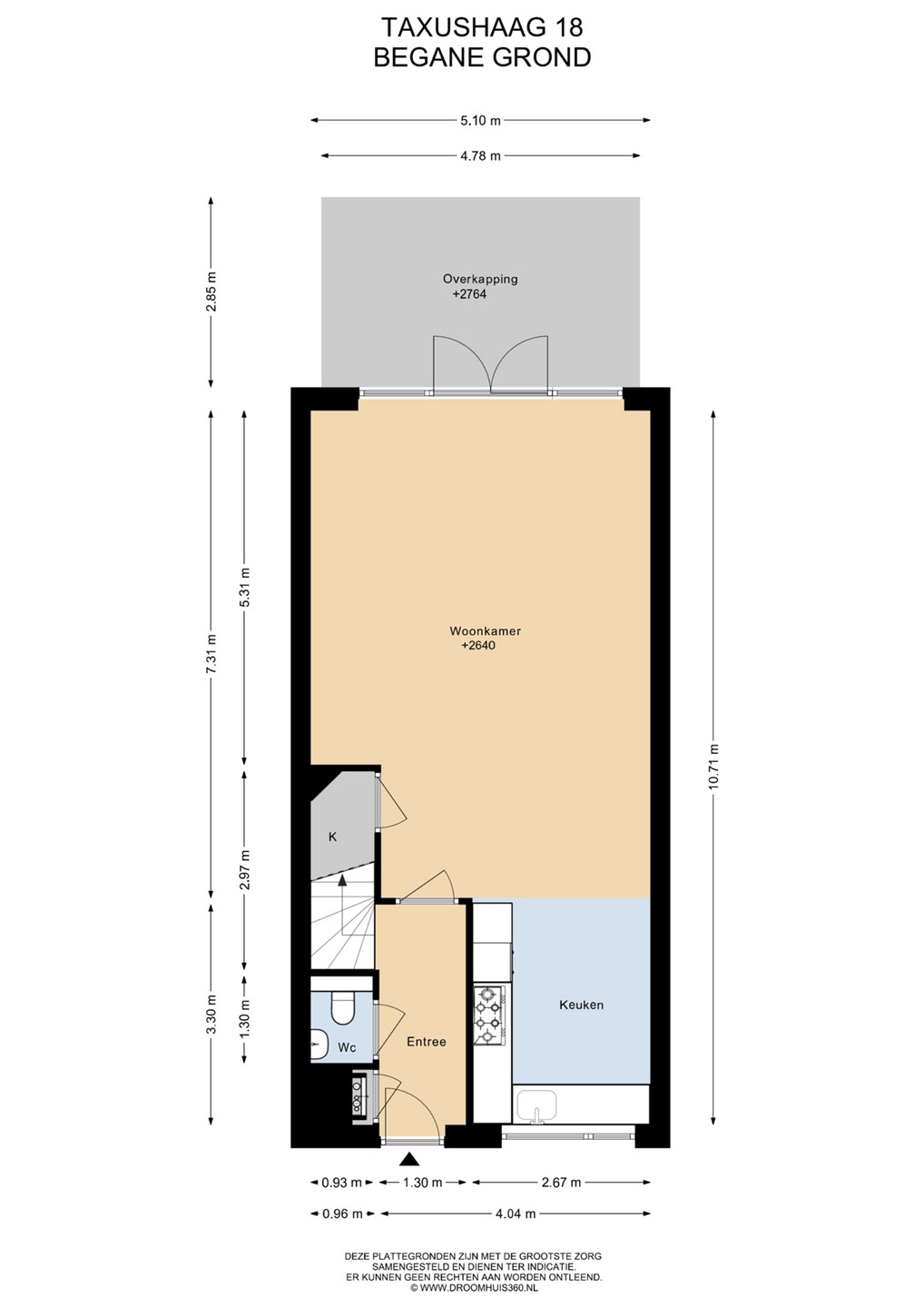
Begane grond
Via de entree kom je in de hal met toilet en trapopgang. De uitgebouwde woonkamer met aansluitende houten veranda is ruim opgezet en heeft een prettige lichtinval dankzij de grote raampartijen aan de tuinzijde. Er is voldoende ruimte voor een grote zithoek en een zespersoons eettafel. De afwerking is modern en verzorgd, met een warme PVC vloer in Hongaarse punt motief gelegd, welke mooi doorloopt over de gehele verdieping. Aan de voorzijde bevindt zich de open keuken, uitgevoerd in een praktische opstelling en voorzien van diverse inbouwapparatuur. De keuken sluit goed aan op de leefruimte en biedt voldoende werk- en kastruimte. Ook geeft de trapkast zeer veel extra bergruimte.
Eerste verdieping
Op de eerste verdieping bevinden zich meerdere slaapkamers, allen van goed formaat en netjes afgewerkt. De badkamer is modern en praktisch ingericht met een ruime inloopdouche, twee wastafelunits, design radiator en wandtoilet.
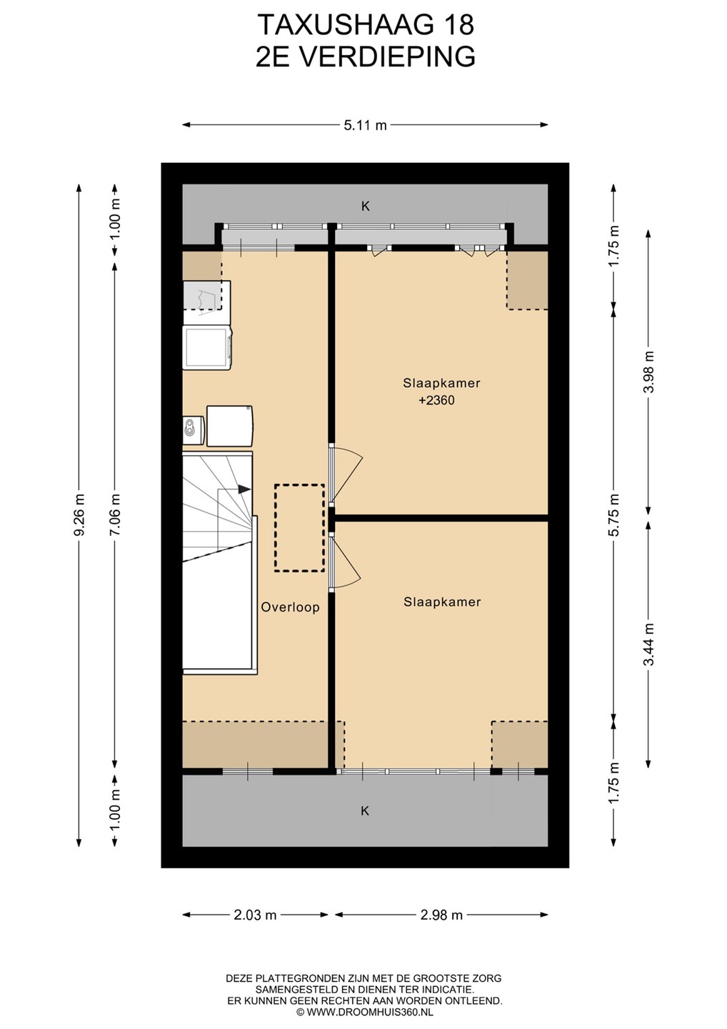
Tweede verdieping
De tweede verdieping is bereikbaar via een vaste trap en biedt twee volwaardige extra slaapkamers met een dakkapel en veel daglicht. Daarnaast is er extra bergruimte in de knieschotten aanwezig, wat deze verdieping, naast de omvormer van de zonnepanelen, opstelling wasmachine/wasdroger en combiketel zeer functioneel maakt.
Bergvliering
Deze ruimte is over de gehele lengte en breedte van de woning te gebruiken en is toegankelijk via een vlizotrap.
Buitenruimte
De achtertuin is verzorgd aangelegd en biedt voldoende ruimte om te zitten en te ontspannen. Dankzij de gunstige ligging is het hier aangenaam vertoeven. Achterin de tuin bevindt zich een berging voor fietsen en opslag.
Pluspunten van deze woning:
• Woonoppervlakte circa 135 m²
• Volledig geïsoleerd, energielabel A en zonnepanelen
• Onderhoud binnen en buiten uitstekend
• Vijf slaapkamers en twee dakkapellen
• Rustige ligging in een prettige woonwijk
• Nabij scholen, winkels en uitvalswegen
Een fijne, instapklare woning op een rustige locatie in Voorhout, geschikt voor een brede doelgroep.
De oplevering is in overleg en de vraagprijs voor dit mooie stukje Voorhout is € 695.000,- k.k.