Beschrijving
'Wonen in een volledig gerenoveerd huis dat verrassend ruim is en een prachtig landelijke ligging in de Bollenstreek heeft’
Aan de rustige Torenlaan in Voorhout, binnen een 30 km zone, staat deze verzorgde tussenwoning. Dit huis is gebouwd in 2004 en is sinds 2021 volledig gerenoveerd, met een prettige ruimtelijkheid en een ligging met rust en uitzicht. Hier is de charme van de Bollenstreek duidelijk zichtbaar. De woning ligt niet in een woonwijk, maar net daar waar zicht is over de velden die in ieder jaargetijde anders zijn, van bewerking en planten tot uitbundig bloeiend, maar altijd met de kenmerkende lijnen en patronen. De dichtstbijzijnde dorpen Sassenheim, Lisse en Voorhout bieden alles wat je nodig hebt: winkels, scholen, horeca, sportfaciliteiten, een treinstation en snelle autoverbindingen met Leiden, Den Haag en Schiphol.
Deze rij huizen heeft toegang via de voordeur die zich aan de achterzijde van de woning bevindt. In de hal bevindt zich de meterkast, het toilet met fonteintje en de trapopgang. Ook de lichte leefruimte op de begane grond is vanuit hier bereikbaar. De woonkamer is open en licht met grote ramen aan voor- en achterkant en voldoende ruimte voor een fijne zithoek en een lange eettafel. Ook is er een praktische vaste kast met veel extra opbergruimte. Vanuit de woonkamer is er uitzicht op de tegenovergelegen bollenvelden. De volledige begane grond is gerenoveerd, van vloer en stucwerk tot aan de landelijke keuken. De open keuken is functioneel ingericht met diverse inbouwapparatuur waaronder een inductiefornuis met een 90cm brede oven, een afzuigkap, vaatwasser, kokendwaterkraan en een koelvriescombinatie. De keuken loopt door de harmonicadeuren vloeiend over in de tuin, wat de verbinding tussen binnen en buiten eenvoudig maakt tijdens zomerse dagen. De tuin heeft een gunstige ligging met veel privacy en biedt zowel ruimte om te zitten als groenblijvende beplanting. Aan het gemeenschappelijke pad achter de tuin ligt een ruime, eigen berging met vernieuwde voorgevel voor bijvoorbeeld fietsen, gereedschap, tuinspullen en, zoals de huidige bewoners hebben, meerdere surfplanken.
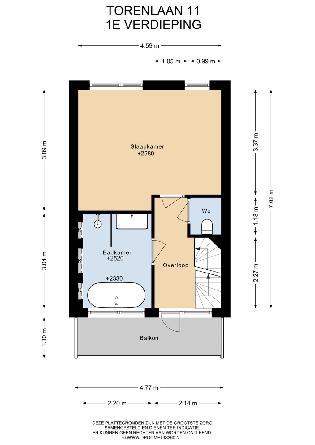
Op de eerste verdieping zijn de overloop, een ruime slaapkamer, een aparte toiletruimte en de moderne badkamer gesitueerd. De slaapkamer aan de voorzijde ligt over de volledige breedte en heeft opnieuw het landelijke uitzicht op de velden. De kamer heeft meerdere indelingsmogelijkheden met een groot tweepersoonsbed, een werkruimte en een garderobekast. De badkamer, die in 2022 volledig gerenoveerd is, heeft een riante afmeting, een mooi uitzicht en is zo ingedeeld dat een ligbad, inloopdouche, handdoekradiator en brede wastafel met meubel prima de ruimte hebben. Het half vrijstaande bad is op een verhoging geplaatst, zodat er altijd uitzicht is over de achterliggende bollenvelden. Vanaf de overloop is het ruime balkon, dat in 2022 is gerealiseerd, toegankelijk. Dankzij de ligging kan men hier vanaf de middag tot de ondergaande zon genieten van de rust, bloemen en het uitzicht.
Middels de vaste trap is de zolderverdieping te bereiken. Deze verdieping biedt een royale slaapkamer met aan twee zijden dakkapellen voor veel daglicht en ruimte. Nu in gebruik als zeer riante masterbedroom, maar eenvoudig op te splitsen in twee slaapkamers met vliering waardoor het totaal aantal slaapkamers op drie zou komen. De cv-installatie uit 2021 en de wasmachineaansluiting zijn hier netjes weggewerkt in een vaste kast.
De Torenlaan staat bekend om de rustige, gemoedelijke omgeving tussen de bollenvelden en toch met alle voorzieningen dichtbij. De ligging tussen de verschillende dorpskernen van Voorhout, Noordwijkerhout, Lisse en Sassenheim geeft een gevoel van verbondenheid en mogelijkheden. Zo hebben Sassenheim en Voorhout beide een treinstation en bieden alle vier de dorpen een compleet aanbod aan winkels, supermarkten, (basis)scholen, sportfaciliteiten en kinderopvang. Ook ligt het strand van Noordwijk op fietsafstand. De N208 en A44 zijn snel bereikbaar voor o.a. Leiden, Den Haag, Haarlem en Amsterdam.
Bijzonderheden:
• Bouwjaar 2004
• Woonoppervlak 102 m2
• Energielabel B
• In 2021 vernieuwde keuken, cv ketel en groepenkast
• Moderne, luxe badkamer uit 2022 met halfvrijstaand bad
• Buitenschilderwerk gedaan in 2022
• Veel bergruimte in de externe berging die in 2025 geïsoleerd is en voorzien is van elektra
• Fijne, landelijke ligging met alle benodigde voorzieningen binnen handbereik