Beschrijving
‘Charmante jaren 30 zeer duurzaam verbouwde A Label gezinswoning aan de geliefde Julianalaan in Sassenheim’
Deze klassiek gebouwde Amsterdamse School-woning aan de prachtige Julianalaan straalt karakter, sfeer en een rijke woonkwaliteit uit. Julianalaan 14 is gebouwd na 1938 en combineert de kenmerkende tijdloze architectuur van toen met werkelijk alle duurzaamheid van nu. Met een goed ingedeeld woonoppervlakte, vijf slaapkamers, energielabel A, warmtepomp en 23 zonnepanelen, koop je hier een huis dat klaar is voor de toekomst. Duurzaam, comfortabel en verrassend compleet.
De jaren ’30 stijl is geliefd én blijvend populair, de plafondhoogte, grote raampartijen, robuuste gevel en charme maken dit type woning tot een vaste waarde in de markt. De begane grond is precies wat je hoopt bij een woning uit deze bouwperiode. Er is sfeer, de maatvoering en de logische indeling die klopt. De entree voelt ruim, met voldoende plek voor een garderobe in het voorportaal met originele glas-in-lood wand. Vanuit hier is de centrale hal bereikbaar met een keurig toilet en toegang tot de woonkamer. Deze is uitgevoerd als kamer en-suite, een geliefd element uit de jaren ’30 dat hier volledig tot zijn recht komt. De originele indeling zorgt voor een natuurlijke verdeling tussen het zit- en eetgedeelte. Aan de voorzijde bevindt zich het zitgedeelte met vrij zicht op de voortuin en de groene Julianalaan. De raampartijen laten het daglicht prachtig binnen en geven de ruimte een prettige sfeer. De en-suitedeuren maken het mogelijk om beide ruimtes van elkaar af te sluiten. Aan de achterzijde ligt het eetgedeelte, in directe verbinding met de tuin en de keuken. Hier is ruimte voor een royale eettafel. De overgang naar de keuken is open en vanzelfsprekend. Dat maakt deze begane grond geschikt voor wie houdt van leven in één ruimte. De open keuken is praktisch ingedeeld en biedt voldoende werk- en bergruimte. Vanuit hier is er direct zicht op de achtertuin, wat zorgt voor een fijne connectie met buiten. Tijdens de zomermaanden zet je de deuren open en loopt binnen moeiteloos over in buiten. De achtertuin is verzorgd en goed van formaat. Met deze afmeting is er voldoende ruimte om meerdere zitplekken te creëren. Of je nu kiest voor een tafel dichtbij de woning of een loungehoek achterin de tuin, de indeling laat het allemaal toe. De tuin biedt privacy en is overzichtelijk, wat het ook aantrekkelijk maakt voor gezinnen met jonge kinderen. Achterin bevindt zich praktische bergruimte voor fietsen en tuingereedschap en een achterom. Vanuit de achtertuin is ook een aansluiting aanwezig voor het laden van een elektrische auto. Ook de voortuin verdient aandacht. Deze creëert niet alleen afstand tot de straat, wat zorgt voor extra privacy in de woonkamer, maar biedt ook een praktische mogelijkheid de fietsen hier neer te zetten.
Wat deze woning daarnaast onderscheidt, is het niveau van verduurzaming. De woning is voorzien van vloerisolatie, wat merkbaar bijdraagt aan comfort op de begane grond. Geen koude voeten in de winter, maar een stabiele en aangename temperatuur. Daarnaast is er spouwmuurisolatie aangebracht, wat de warmte binnenhoudt en het energieverbruik verlaagt. De aanwezigheid van dubbel glas zorgt niet alleen voor isolatie, maar ook voor geluidsreductie en een comfortabel binnenklimaat. Een extra pluspunt is de geïnstalleerde warmtepomp waarmee het huis volledig van het gas is gehaald. Dit zorgt niet alleen voor een constante binnentemperatuur, maar ook voor een hele lage energierekening.
De eerste verdieping is ruim opgezet en praktisch ingedeeld, volwaardige kamers die je flexibel kunt gebruiken. Aan de achterzijde bevindt zich een royale slaapkamer die zich moeiteloos leent als hoofdslaapkamer. De kamer is breed opgezet en biedt voldoende ruimte voor een groot bed, een garderobekast en toegang tot de vaste kast. Het balkon aan de achterzijde geeft een weids uitzicht. Aan de voorzijde ligt de tweede grote slaapkamer. Ook dit is een volwaardige kamer met prettige lichtinval en vrij zicht over de Julianalaan. Ideaal als ruime kinderkamer, logeerkamer of werkruimte. Daarnaast is er een kleinere voorkamer aanwezig. Deze ruimte is perfect als babykamer, thuiswerkplek of inloopkast. Juist deze extra kamer maakt de verdieping flexibel en toekomstbestendig. Of je nu een groeiend gezin hebt of regelmatig vanuit huis werkt, de indeling past zich eenvoudig aan. De badkamer is compleet en verzorgd uitgevoerd. Hier is een ligbad, een separate douche, een toilet én een dubbele wastafel. Dat laatste is in de praktijk een groot pluspunt. Het aanwezige raam zorgt voor natuurlijk daglicht en ventilatie.
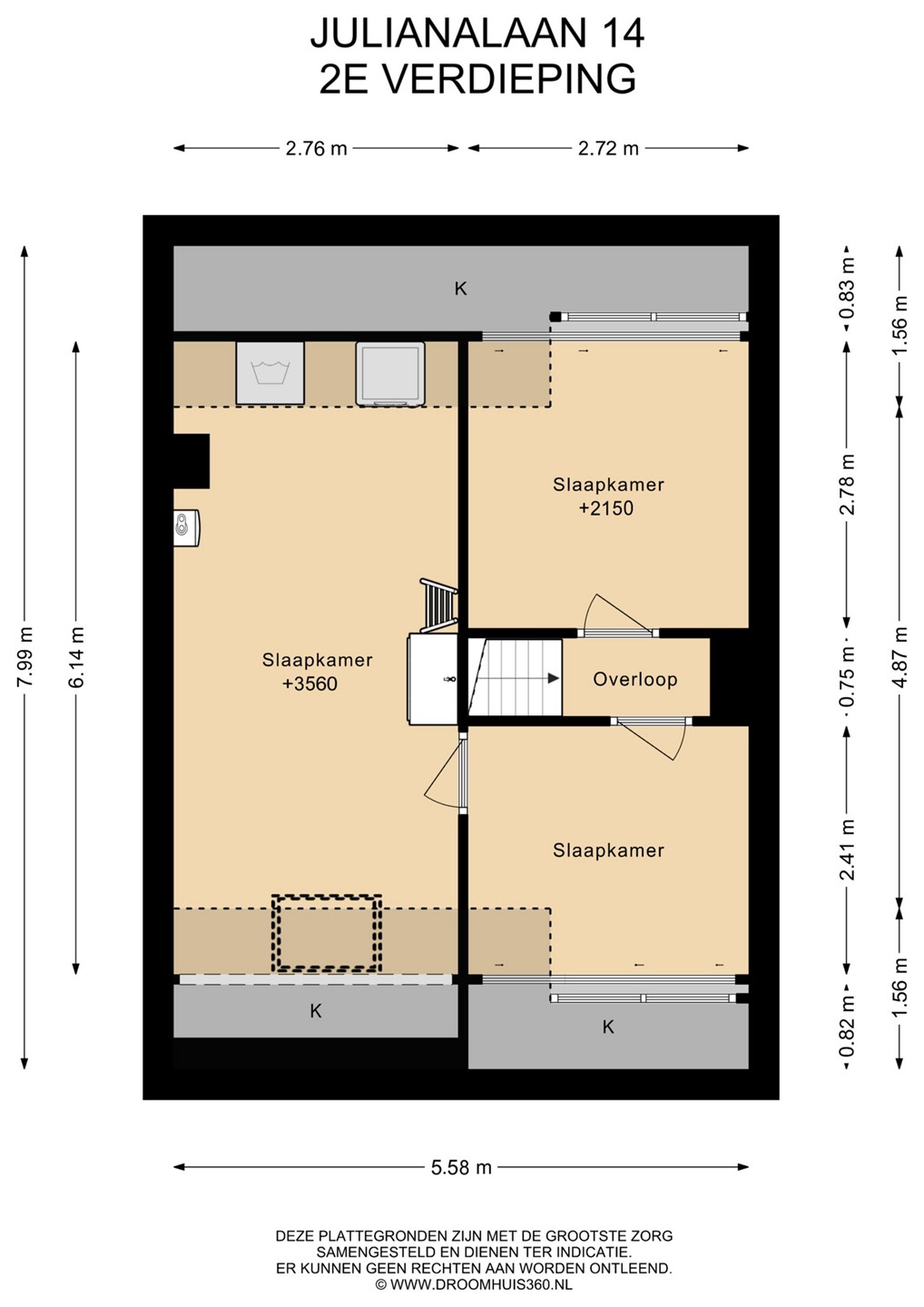
De zolderverdieping is een volwaardige toevoeging aan het woonoppervlak en maakt deze woning echt geschikt voor grotere gezinnen of voor wie extra ruimte zoekt. Op deze etage bevinden zich twee slaapkamers, beide met een prettige maatvoering en voldoende daglicht. Wat deze etage bijzonder maakt, is de indeling. Eén van de slaapkamers geeft namelijk doorgang tot een zeer royale en hoge ruimte. Dit is geen standaard zolderkamer, maar een indrukwekkend volume met opvallend veel hoogte en lucht. Momenteel zijn hier de wasmachine en droger opgesteld, evenals de omvormer van de 21 zonnepanelen, een grote warmte-pompboiler en een volledig geïsoleerd dak. Ook is er een wastafel en zijn alle voorzieningen getroffen voor het realiseren van een tweede badkamer. Tegelijkertijd biedt deze ruimte volop mogelijkheden, denk aan een zelfstandige ouderslaapkamer met eigen badkamer, een atelier, sportruimte of een extra ruime werkplek. De hoogte en het volume geven hier echt kansen. Vanuit deze ruimte is bovendien de bergzolder in de nok bereikbaar. Ideaal voor het opbergen van koffers, seizoensspullen en archief, zonder dat het ten koste gaat van de leefruimte op de andere verdiepingen.
Ben je op zoek naar een prachtige woning met een tijdloze uitstraling en moderne leefbaarheid? Neem dan contact met ons op voor een bezichtigingsafspraak. Dit is een kans die je niet wil laten liggen.
Gelegen in de gewilde en kindvriendelijke wijk Sassenheim West/Oranjebuurt geniet je van een prettige, rustige woonomgeving met een goede bereikbaarheid. Winkels, supermarkten en (basis)scholen liggen op loopafstand, en station Sassenheim met snelle verbindingen richting Leiden, Schiphol, Amsterdam én Den Haag bereik je in een paar minuten fietsen. Voor de auto zijn de A44 en N206 snel toegankelijk, waardoor dit adres ideaal gelegen is. Het strand van Noordwijk ligt op 20 minuten fietsen, evenals de binnenstad van Leiden.
Bijzonderheden
- Riante Jaren ’30 woning in de stijl van Berlage (bouwjaar 1938)
- Gelegen aan de geliefde Julianalaan in Sassenheim
- 124 m² woonoppervlak, 142 m² perceeloppervlak
- Energielabel A
- Uitstekend onderhouden en zorgvuldig volledig verduurzaamd en gasvrij gemaakt
- Dak-, vloer- en spouwmuurisolatie aanwezig
- 23 zonnepanelen en een warmtepomp
- Voorziening voor het laden van een elektrische auto
- Volledig voorzien van dubbel glas, ook delen van het glas-in-lood
- Waterontharder geïnstalleerd
- Authentieke kamer en-suite op de begane grond
- Vijf slaapkamers verdeeld over twee verdiepingen
- Bergzolder in de nok van de woning
- Complete badkamer met ligbad, douche, toilet en dubbele wastafel
- Gelegen nabij winkels, scholen en sportvoorzieningen
- Goede bereikbaarheid richting A44, N206 en station Sassenheim
De oplevering in overleg en de vraagprijs voor dit unieke stukje Sassenheim is € 698.000,- k.k.