Beschrijving
‘Modern 90 m2, licht 4 kamer appartement met royaal balkon op het zuidwesten’
Aan de Koetsiersweg in Sassenheim ligt dit zeer verzorgde en verrassend lichte appartement met een ruim balkon, drie slaapkamers en een moderne, open leefruimte met woon/eetkeuken. De woning maakt direct een prettige indruk: strak afgewerkt, goed onderhouden en met een fijne hoeveelheid daglicht door de grote raampartijen. Een appartement waar je zonder aanpassingen zo in kunt trekken en waar comfort, ruimte en een centrale ligging mooi samenkomen.
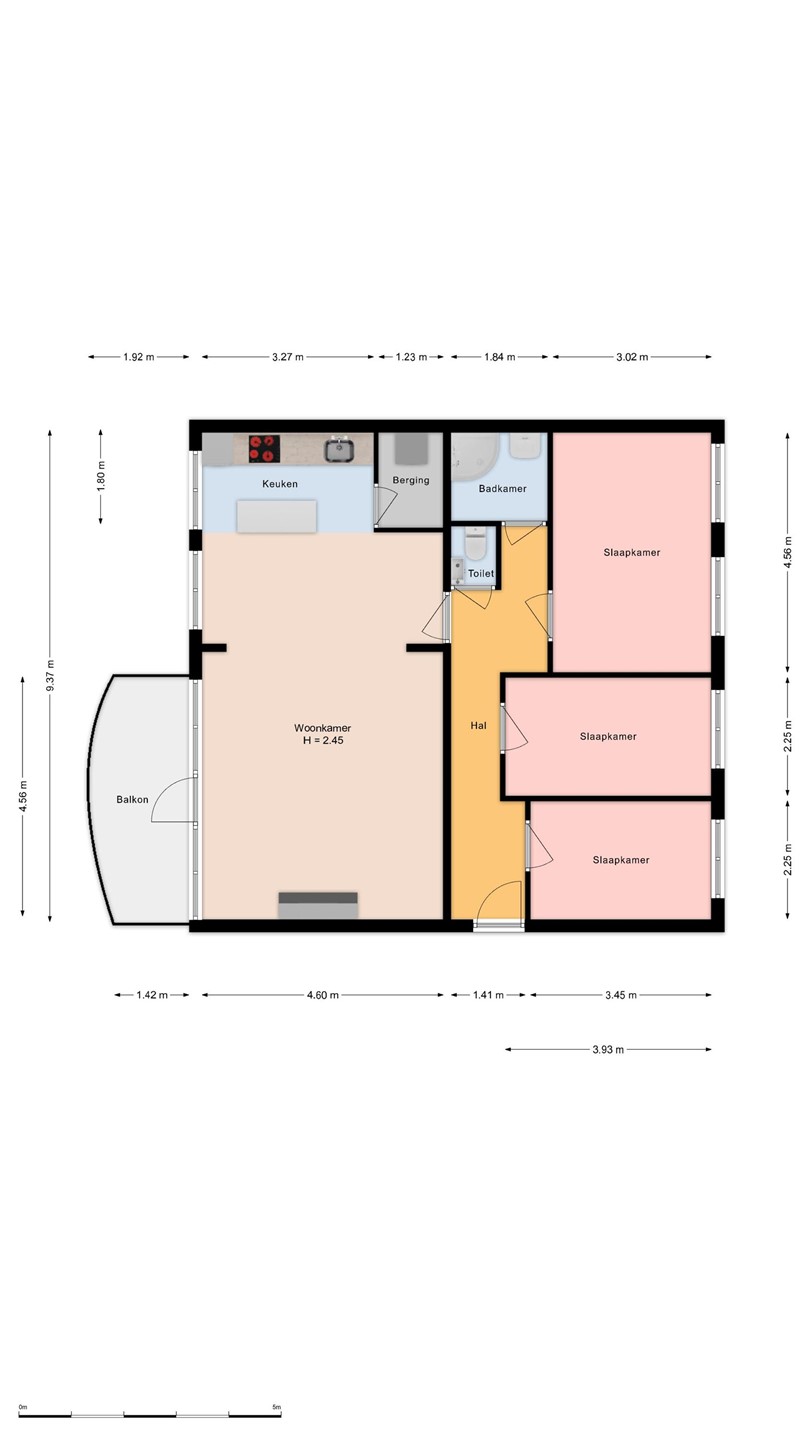
Via de nette gezamenlijke entree en het trappenhuis bereik je de woning. Binnen valt meteen op hoe licht en open het appartement is. De hal geeft toegang tot het separate toilet met fonteintje, alle slaapvertrekken en de woonkamer. De living is ruim van opzet en dankzij de grote ramen bijzonder prettig van sfeer. Er is volop plek voor zowel een comfortabele zithoek als een royale eettafel. De open recent vernieuwde keuken sluit hier mooi op aan en is modern uitgevoerd met een strak ontwerp, veel kastruimte en een praktische opstelling. Hierdoor blijft de verbinding met de woonkamer prettig behouden en is het een fijne plek om te koken en te leven. Daarnaast is er in de bijkeuken de mogelijkheid voor een praktische opstelling voor de wasmachine en droger aanwezig. De ook hier aanwezige HR CV ketel dient te worden vervangen.
Vanuit de woonkamer is er directe toegang tot het royale balkon op het zuidwesten. Dit is echt een verlengstuk van de leefruimte: ruim genoeg voor een zitje en door de open ligging een heerlijke plek om buiten te zitten en van het uitzicht te genieten. De brede raampartijen en de directe verbinding met buiten geven het appartement extra veel licht en een ruimtelijk gevoel.
Het appartement beschikt over drie slaapkamers. De hoofdslaapkamer is van goed formaat en biedt voldoende ruimte voor een tweepersoonsbed en aanvullende kastruimte. De tweede en derde slaapkamer zijn veelzijdig in gebruik en ideaal als kinder-, werk- of logeerkamer. Ook deze ruimtes profiteren van een prettige lichtinval.
De badkamer is modern en fris afgewerkt en voorzien van een douchecabine en wastafelmeubel.
Ook de omgeving is prettig. Koetsiersweg 110 ligt op een goed bereikbare locatie in Sassenheim, met winkels, Hoogvliet Supermarkt, verdere voorzieningen en uitvalswegen in de nabijheid. Daarmee woon je hier rustig, maar wel met alles wat je dagelijks nodig hebt binnen handbereik. Een comfortabel appartement met een verzorgde uitstraling, veel licht en een heerlijk balkon op een centrale plek in het dorp.
Pluspunten
• Licht en verzorgd appartement.
• Drie ruime slaapkamers !
• Royale woonkamer met grote raampartijen
• Recente moderne open keuken
• Ruim balkon met de hele dag zon en open uitzicht
• Recente moderne badkamer met douchecabine en wastafelmeubel
• Praktische wasruimte/opstelling voor wasmachine en droger
• Gelegen op een centrale locatie in Sassenheim
• Instapklaar en zeer netjes afgewerkt
Er zal bij deze verkoop een "niet bewonersclausule" worden opgenomen in de koopakte.
De oplevering kan per direct en de vraagprijs is € 450.000,- k.k.