Beschrijving
U kunt zich aanmelden voor een bezichtiging op dinsdag de 27e, woensdag de 28e en donderdag de 29e januari !
'Prettige eengezinswoning in kindvriendelijke, groene woonwijk'
Deze prettige en praktisch ingedeelde eengezinswoning is gelegen in de groene en kindvriendelijke wijk Oosthout en beschikt over vier slaapkamers, een lichte woonkamer en een dichte keuken. De achtertuin ligt op het zuidwesten, ideaal om daar van de middag- en avondzon te genieten. De woning is gelegen aan een rustige, doodlopende straat, met scholen, winkels, openbaar vervoer en uitvalswegen in de nabije omgeving. Voor recreatie zijn er bossen, zee en strand van Noordwijk op fietsafstand bereikbaar.
Benieuwd naar de indeling?
Begane grond
Via de entree kom je in de hal met meterkast, een toilet met fonteintje, de trapopgang naar de eerste verdieping en de toegang tot de woonkamer. De lichte woonkamer biedt uitzicht op zowel de voor- als achtertuin en beschikt over een praktische trapkast. Aan de achterzijde bevindt zich de dichte keuken, eenvoudig uitgevoerd en met directe toegang tot de achtertuin. De keuken kan eventueel bij de woonkamer worden betrokken voor een open leefruimte.
Eerste verdieping
Op de overloop bevinden zich 3 ruime slaapkamers. De badkamer is eenvoudig ingericht met een douche, wastafel en toilet en is voorzien van een aansluiting voor de wasmachine. Deze ruimte biedt volop mogelijkheden om de badkamer geheel naar eigen wens en stijl te moderniseren.
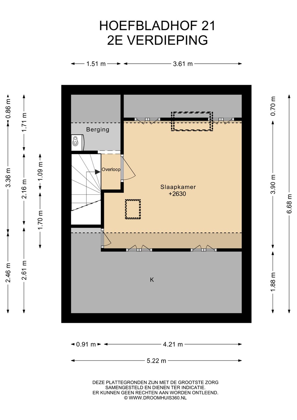
Zolderverdieping
De zolderverdieping bestaat uit een voorzolder met de cv-opstelling en een vierde, zeer ruime, slaapkamer. Deze zolderkamer beschikt over een groot dakraam, waardoor veel licht binnenkomt en de ruimte prettig in het gebruik is. Daarnaast is er veel praktische opbergruimte onder de schuine wanden van het dak.
Buitenruimte
De verzorgd aangelegde achtertuin biedt een fijne combinatie van groen en terras. Dankzij de rustige ligging en het beschutte karakter is dit een prettige plek om heerlijk buiten te zitten, te ontspannen of kinderen veilig te laten spelen. De tuin is bereikbaar via een achterom en beschikt achterin over een stenen berging met elektriciteit, ideaal voor het stallen van fietsen en het opbergen van tuingereedschap.
Ligging
De ligging van deze woning is uitstekend. In de omgeving vindt u diverse scholen en kinderopvang. Voor dagelijkse boodschappen zijn er supermarkten en winkels op korte afstand. Ook zijn er uitstekende openbaarvervoersverbindingen, inclusief een NS-station op loopafstand. De woning is gunstig gelegen nabij de A44 (Leiden, Den Haag en Amsterdam). Voor recreatie zijn de bossen, de zee en het strand van Noordwijk op fietsafstand.
Pluspunten op een rij
• Eengezinswoning uit 1985
• Praktische en functionele indeling
• 4 slaapkamers
• Mogelijkheden om keuken en badkamer naar eigen wens te moderniseren
• Achtertuin op het zuidwesten met achterom en stenen berging voorzien van elektriciteit
• Scholen, kinderopvang, winkels en openbaar vervoer in de buurt
• Gunstig gelegen nabij A44 en op fietsafstand van bos, zee en strand
De vraagprijs voor al dit moois is € 475.000,- kosten koper.