Beschrijving
Ruime eengezinswoning met vier slaapkamers en zonnige tuin in hartje Warmond
Op een fijne en kindvriendelijke locatie in Warmond vindt u deze royale eengezinswoning aan de Van Mathenessestraat 43. De woning beschikt over maar liefst vier slaapkamers, een lichte doorzonwoonkamer en een zonnige achtertuin. Hoewel de woning gemoderniseerd dient te worden, biedt dit huis volop potentie om er een eigentijds en comfortabel familiehuis van te maken. Met wat liefde en aandacht kunt u hier een waar pareltje realiseren.
Indeling
Bij binnenkomst treft u de hal met toilet, meterkast en trapopgang naar de eerste verdieping. De doorzonwoonkamer is heerlijk licht dankzij de grote ramen aan zowel de voor- als achterzijde. Vanuit de woonkamer heeft u direct toegang tot de zonnige achtertuin, die met een beetje creativiteit kan worden omgetoverd tot een groene oase.
De open keuken is praktisch ingedeeld en voorzien van een baropstelling die de ruimte op een speelse manier verbindt met de woonkamer. Ook hier geldt: een update in stijl en afwerking geeft deze ruimte meteen een moderne uitstraling.
Op de eerste verdieping bevinden zich drie ruime slaapkamers, waarvan twee aan de achterzijde en één aan de voorzijde. Alle kamers zijn voorzien van grote raampartijen, wat zorgt voor een prettige lichtinval. De badkamer is eenvoudig, maar functioneel ingericht met een douche, toilet en wastafel.
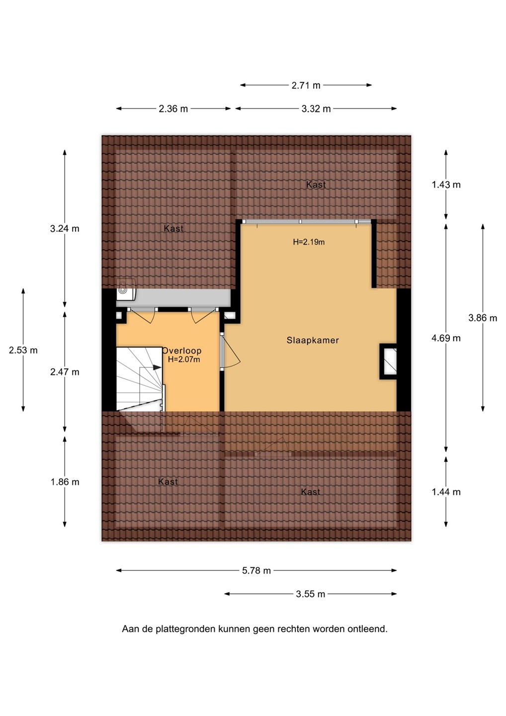
De tweede verdieping bereikt u via een vaste trap. Hier bevindt zich een royale zolderverdieping met dakkapel, die is ingericht als vierde slaapkamer. Dankzij de goede afmetingen en het vele daglicht is dit een volwaardige ruimte die ook uitstekend dienst kan doen als werk- of hobbykamer.
Buitenruimte
De woning beschikt over een voor- en achtertuin. De achtertuin is verrassend diep en biedt veel privacy. Met de juiste inrichting en beplanting maakt u hier een heerlijke plek om te ontspannen, te tuinieren of om lange zomeravonden door te brengen met vrienden en familie. Achter in de tuin staat een stenen berging, ideaal voor fietsen en tuingereedschap.
Ligging
De Van Mathenessestraat ligt in een rustige woonwijk, op korte afstand van alle voorzieningen. In de directe omgeving vindt u scholen, speeltuintjes, sportverenigingen en winkels voor de dagelijkse boodschappen. Bovendien ligt Warmond centraal in de Randstad: Leiden bereikt u in enkele minuten en ook steden als Den Haag, Amsterdam en Haarlem zijn snel en gemakkelijk bereikbaar. Voor natuurliefhebbers is er volop recreatiemogelijkheid rondom de Kagerplassen en de omliggende polders.
Pluspunten van deze woning
• Vier ruime slaapkamers
• Doorzonwoonkamer met veel lichtinval
• Zonnige en diepe achtertuin met stenen berging
• Zolderverdieping met dakkapel
• Gelegen in rustige en kindvriendelijke wijk
• Centrale ligging nabij Leiden, Amsterdam en Den Haag
• Woning met veel potentie: geheel naar eigen smaak te moderniseren
Conclusie
De Van Mathenessestraat 43 in Warmond is een ideale gezinswoning voor wie op zoek is naar ruimte en de mogelijkheid om een huis volledig naar eigen wens te transformeren. Dankzij de fijne ligging, de vier slaapkamers en de zonnige tuin is dit een kans die u niet wilt missen.
De vraagprijs is € 475.000,- k.k. en de oplevering kan snel